
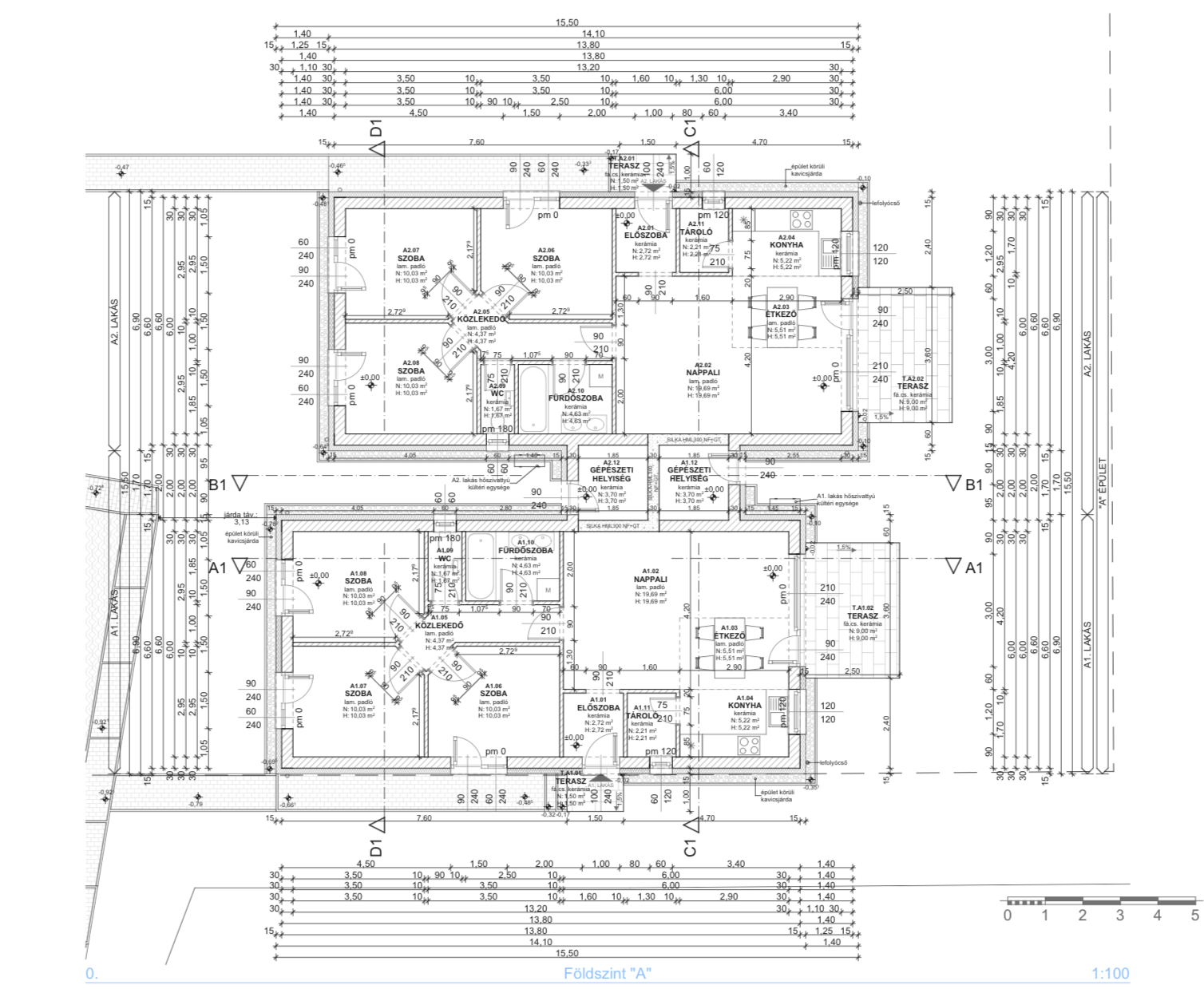
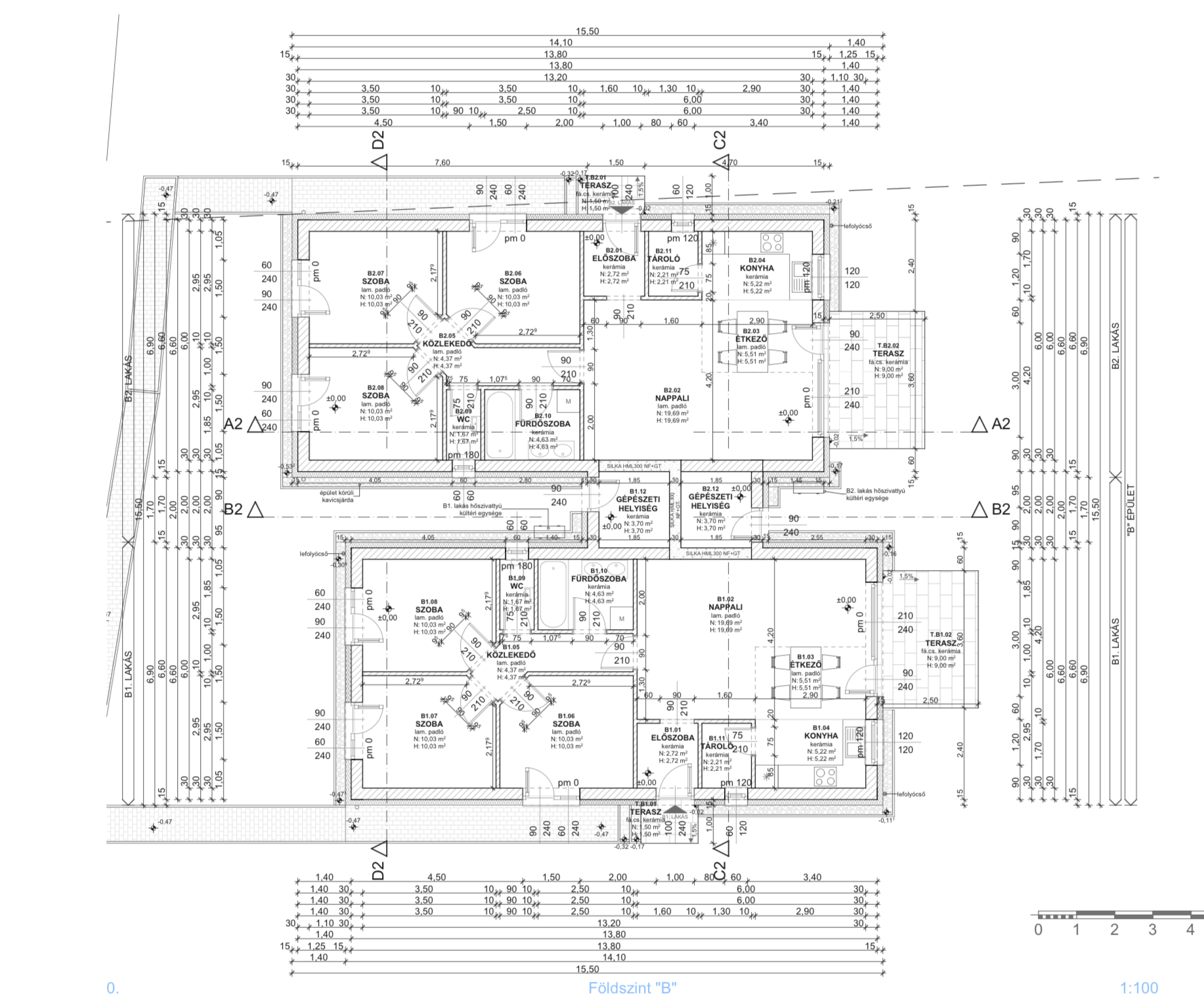
Hamarosan megkezdjük következő projektünk kivitelezését az Alkotmány utca 57. szám alatt, ahol két ikerház épül, összesen négy, szinte teljesen különálló lakással.
A lakások várható átadása 2027 második negyedévében történik.
Lakásonként közel 80 m²-es, átgondolt elrendezésű otthonok, ahol a korszerű műszaki tartalom és az energiatakarékos megoldások kiemelt szerepet kapnak.
2 Külön Társasházi álbetétekkel rendelkező ikerház - 2 külön ütemben.
1. Ütem Irányár / lakás: 89,9 M. Ft.
2. Ütem Irányár / lakás: 93,5 M. Ft.
Főbb jellemzők:
Az ingatlan ideális választás mindazok számára, akik természetközeli, mégis jól megközelíthető helyen keresnek új, energiatakarékos otthont hosszú távra.
Irányár: 84,9 millió Ft / lakás
További információért keressen bizalommal




